Looking for the perfect commercial or residential property in north-west London? You’re in the right place. We’re the local experts with over a century of experience and all the modern tools to help you.
We’ve got a team of experts who will accurately appraise your property for free.
We’re experts in marketing both residential and commercial properties. Whether you're planning to sell, rent or are undecided, we’re here to help.
We’ve got a team of experts who will accurately appraise your property for free.
We act for both tenants and landlords across a range of property services, making sure that properties are at their best, performing well financially and providing owners and tenants with peace of mind.
We’ve got a team of experts who will accurately appraise your property for free.
We act for both tenants and landlords across a range of property services, making sure that properties are at their best, performing well financially and providing owners and tenants with the peace of mind they deserve.
We’ve got a team of experts who will accurately appraise your property for free.
Dutch & Dutch are experts in both residential and commercial property agency and management. Get in touch with our friendly team of experts now.
We’ve got a team of experts who will accurately appraise your property for free.
£1,950 Per Month
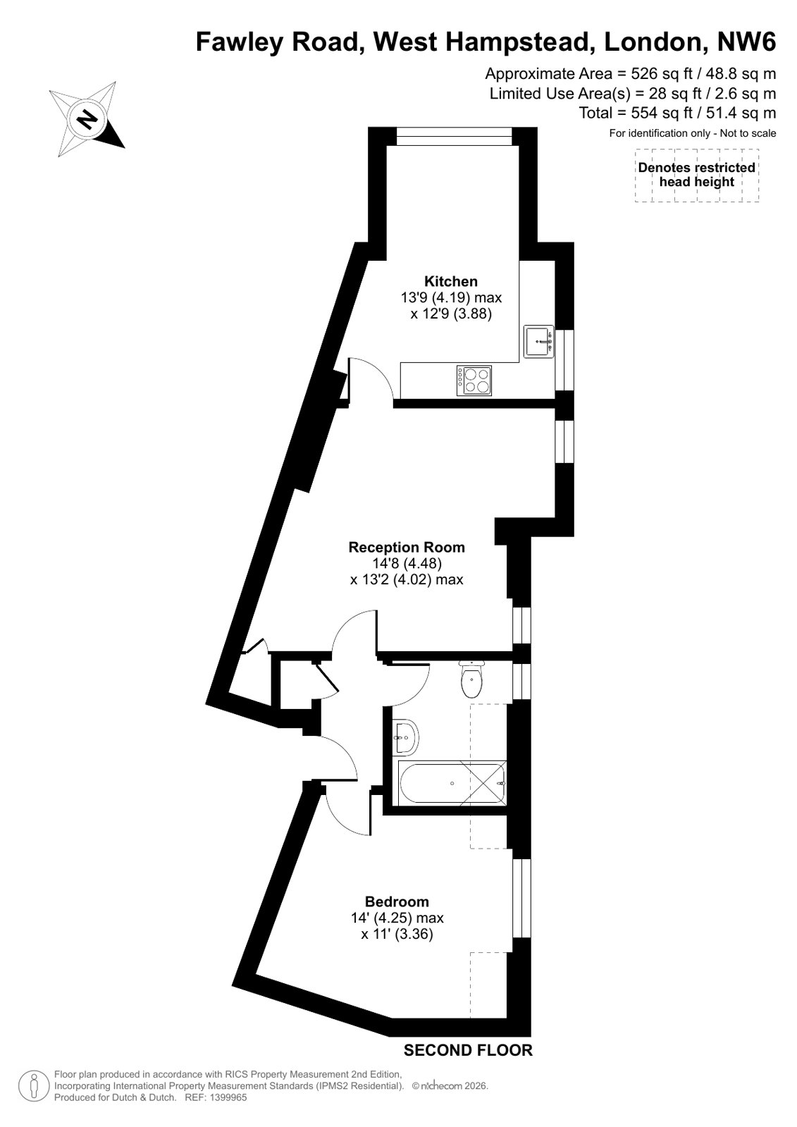
Situated on one of West Hampstead's most sought after roads is this smartly presented one bedroom apartment located on the second floor of a smart period conversion. Available furnished for an immediate move in. Council Tax Band D.
£3,600 Per Month
A stunning two bedroom flat with a private balcony situated on the first floor of a state of the art heritage-inspired mansion block in...
£3,750 Per Month
Presenting this grand and extremely spacious newly redecorated three bedroom flat in Hampstead with private patio, communal garden and...
£3,700 Per Month
A luxury 911sqft two double bedroom apartment in the highly sought after 5 The Avenue located in Brondesbury. Available from the 12th...
£2,850 Per Month
A sensational two bedroom duplex apartment (1013sq ft/ 94sq m) situated within this well regarded, loft style apartment building. Oppidan...
£3,150 Per Month
A stunning 1055sq.ft three double bedroom split level apartment with a large private garden supberbly located in West Hampstead. Offered...
£3,102 Per Month
A Luxury 1,081 sq ft three bedroom flat of (two doubles and one small single) superbly located in the heart of Kensal Rise. The flat...
£3,000 Per Month
A stunning two double bedroom garden flat (945 sq ft/88 sq m) situated within a smart period conversion, enviably located in Kilburn....
£2,750 Per Month
A superbly renovated two bedroom mews house arranged over two floors superbly located in Maida Vale. Available for an immediate move in,...