Looking for the perfect commercial or residential property in north-west London? You’re in the right place. We’re the local experts with over a century of experience and all the modern tools to help you.
We’ve got a team of experts who will accurately appraise your property for free.
We’re experts in marketing both residential and commercial properties. Whether you're planning to sell, rent or are undecided, we’re here to help.
We’ve got a team of experts who will accurately appraise your property for free.
We act for both tenants and landlords across a range of property services, making sure that properties are at their best, performing well financially and providing owners and tenants with peace of mind.
We’ve got a team of experts who will accurately appraise your property for free.
We act for both tenants and landlords across a range of property services, making sure that properties are at their best, performing well financially and providing owners and tenants with the peace of mind they deserve.
We’ve got a team of experts who will accurately appraise your property for free.
Dutch & Dutch are experts in both residential and commercial property agency and management. Get in touch with our friendly team of experts now.
We’ve got a team of experts who will accurately appraise your property for free.
£5,500 Per Month
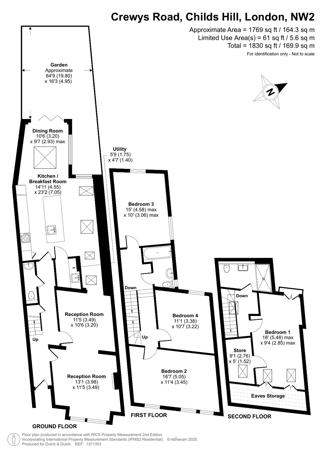
This stunning, newly refurbished four-bedroom home delivers exceptional modern living on a peaceful residential street, enviably positioned in the very heart of sought-after Childs Hill, NW2. Set over three floors, the property features a spacious open-plan kitchen/dining area, leading to a separate dining room and a large reception room, four generously sized bedrooms, three contemporary bathrooms, plenty of storage throughout and a private west facing garden. Finished to a superb standard throughout, the home combines elegant design with quality fixtures and fittings. Ideally located close to Golders Hill Park and Hamstead Heath as well as all the local amenities of Finchley Road and Childs Hill and the excellent transport links of Golders Green (northern Line). Available unfurnished for an immediate move in.
£5,612 Per Month
Arranged over 1,485 sq ft this stunning apartment features three double bedrooms (master and guest bedroom with en-suites), an open plan...
£5,200 Per Month
Magnificent five bedroom house in West Hampstead with a private garden offering over 2000 sq ft of space on one of West Hampstead’s most...
£5,400 Per Month
A stunning 2,063 ft five bedroom property situated on the raised ground floor of a highly sought after Mansion block superbly located in...
£5,500 Per Month
Arranged over 1,485 sq ft this stunning apartment features three double bedrooms (master and guest bedroom with en-suites), an open plan...
£3,600 Per Month
A stunning two bedroom flat with a private balcony situated on the first floor of a state of the art heritage-inspired mansion block in...
£3,750 Per Month
Presenting this grand and extremely spacious newly redecorated three bedroom flat in Hampstead with private patio, communal garden and...
£2,850 Per Month
A sensational two bedroom duplex apartment (1013sq ft/ 94sq m) situated within this well regarded, loft style apartment building. Oppidan...